Search

21 Oct 2025

Industrial units approved after Torbay Council ignore green space concerns

Councillors unanimously approve industrial development, arguing jobs and investment outweigh loss of green space

The site off Nicholson Road (Image courtesy: Google Street View)

The site off Nicholson Road (Image courtesy: Google Street View)

Torbay’s ‘chronic’ lack of industrial units has prompted members of the bay’s planning committee to defy their officers.

Councillors have given the green light for 17 units on the outskirts of Torquay despite a detailed report from the planning department advising them not to.

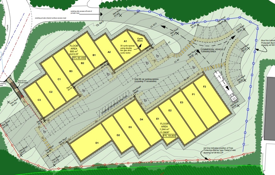
How the new units off Nicholson Road in Torquay will look (Image courtesy: Torbay council)

Officers said the plan for land off Nicholson Road would mean the loss of open green space, and would create dangerous traffic conditions.

But councillors said the bay’s pressing need for employment projects trumped the concerns.

Cllr Swithin Long (Lib Dem, Barton with Watcombe) told the committee: “There is a real risk that local businesses could be relocating out of the bay and taking jobs with them.

“The officers’ recommendation risks sending out the message that Torbay is closed for business. Are we really saying no to jobs in a deprived ward?

“I would say the deprivation issues make this a special case.”

Applicant Tim Jones told the committee that the bay had a ‘chronic under-supply’ of modern industrial units. “This development is desperately needed,” he said.

The 17 units will be in two blocks on land between the county court in Nicholson Road and the current Carpetright store. One one letter of objection was received during the consultation process.

But the officers’ report said the project would mean losing a designated local green space. It did not meet the ‘very special circumstances’ criteria, they said, and went against the Torquay Neighbourhood Plan.

And, they said, there was no safe  access to the site for all users.

However, Dr Rodney Horder, speaking on behalf of the Torquay Neighbourhood Forum, argued: “As this proposal will deliver much-needed employment space, the forum asks councillors to overrule their case officers and approve this application, as long as it does not set a precedent for development on green spaces.”

Cllr Nick Bye (Con, Wellswood) said: “We desperately need the investment, the regeneration and the jobs.

“We are the poorest town in the South West, and it would seem extraordinary to turn away investment of this sort at the same time as putting out the cap and wanting the government and others to help us.

“This is a very low-quality area strewn with litter. It is not a public space anyone would enjoy.

“Let’s move on and get the investment.”

Planning committee members voted unanimously to allow the development to go ahead, subject to a number of conditions.

“We have to be bold as a committee sometimes,” said Cllr Nick Pentney (Lib Dem, Tormohun).

To continue reading this article,
please subscribe and support local journalism!


Subscribing will allow you access to all of our premium content and archived articles.

Subscribe

To continue reading this article for FREE,
please kindly register and/or log in.


Registration is absolutely 100% FREE and will help us personalise your experience on our sites. You can also sign up to our carefully curated newsletter(s) to keep up to date with your latest local news!

Register / Login

Buy the e-paper of the Donegal Democrat, Donegal People's Press, Donegal Post and Inish Times here for instant access to Donegal's premier news titles.

Keep up with the latest news from Donegal with our daily newsletter featuring the most important stories of the day delivered to your inbox every evening at 5pm.