Search

22 Oct 2025

Torquay hotel wins more awards - and unveils future plans

Torquay hotel wins more awards - and unveils future plans
An award-winning Torquay hotel and spa has celebrated picking up even more accolades by announcing details of future plans including a new swim-out pool and bedroom refurbishments. Following success at the Visit Devon Tourism Awards - where they scooped

An award-winning Torquay hotel and spa has celebrated picking up even more accolades by announcing details of future plans including a new swim-out pool and bedroom refurbishments.

Following success at the Visit Devon Tourism Awards - where they scooped double gold awards for Large Hotel of the Year and, for the third consecutive year, Spa and Wellbeing Experience of the Year, Lincombe Hall has won silver at the South West Tourism Awards 2023 for Large Hotel of the Year.

Brett and Jo Powis, who have owned Lincombe Hall for more than a decade, said: “We are so pleased to have achieved this award, we wanted to become one of the best hotels in the South West, and this award is recognition of that amazing dream being realised.

“We cannot wait to start our future plans which include extending the spa with a brand new swim-out pool and completing the bedroom refurbishments.”

Brett Powis said: “To have come so far in just 12 years when we first bought Lincombe Hall as a three-star hotel out of bankruptcy is truly astounding.”

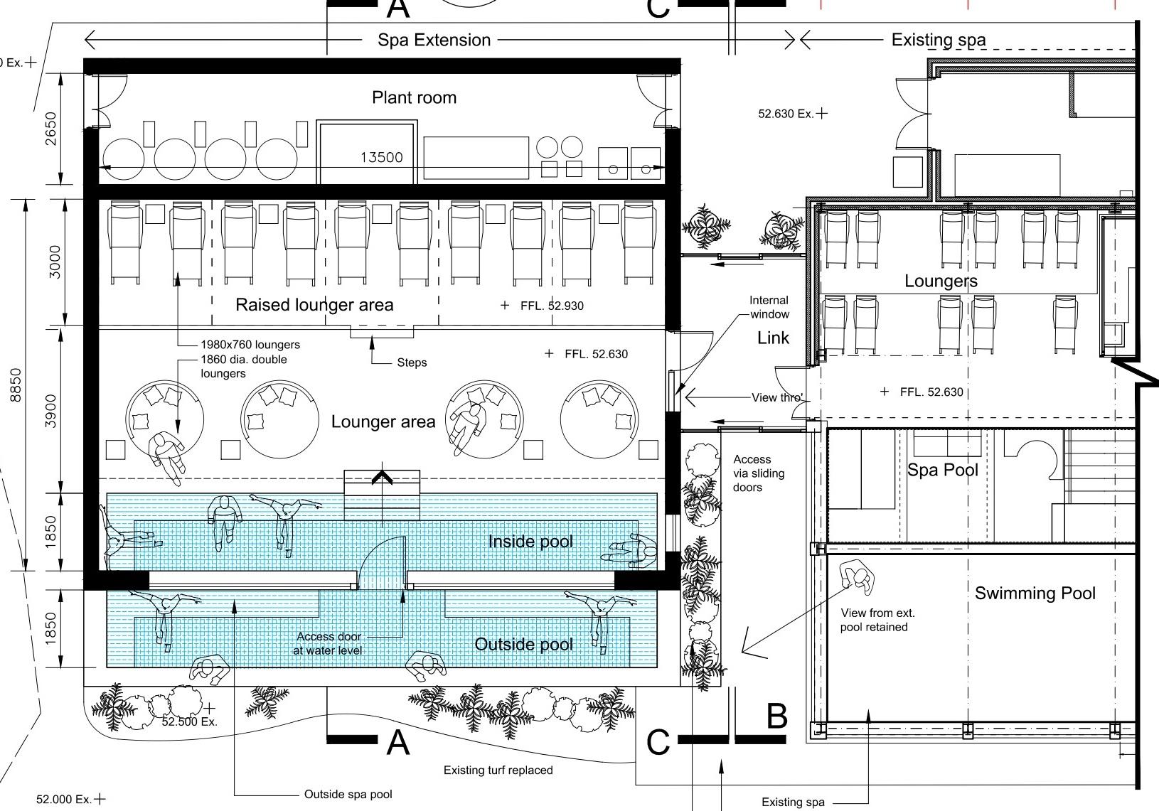
A floor plan of the extension to Lincombe Hall's spa
A floor plan of the extension to Lincombe Hall's spa

Peter Watkins, general manager, said: “Since joining Lincombe Hall three years ago, to achieve this award is an amazing triumph. This not only reflects the hard work and commitment of the team to deliver exceptional customer service, but the luxurious facilities we offer and some of the best food in Torbay.

“One of our goals is to become the only AA-rated 4 Red Star in Torbay and this is another step along that journey for us.

“The other finalists were truly exceptional hotels, one even boasting a Michelin star, so to be listed among them as finalists was an astounding achievement let alone to come second in our category.

The multi-award winning Lincombe Hotel and Spa
The multi-award winning Lincombe Hotel and Spa

“Following the disappointing recent article about Torquay in the Telegraph which focused on the negatives, we have so many positive aspects and reasons to visit such as The Elephant, No.7, a multitude of restaurants on Torwood Street, the best B&B in the world along with great travel links, and now we have the best hotel in Devon, the best spa and wellbeing experience in Devon and also second best hotel in the South West, so perhaps the Telegraph should come and look at some of the positives we have in the town.”

Lincombe Hall Hotel and Spa has undergone extensive designer-led refurbishments in recent years, with the hotel opening its latest improvements, an extended outdoor seating and dining area able to cater for up to 40 covers, last month.

Up to 20 more bedrooms are scheduled for refurbishment during the winter and building work on a new extension will also start during the winter with plans for opening in late-summer 2024.

Lincombe Hall has now been entered into the Visit England Awards for Excellence, where the finalists are announced in April and the awards in June.

To continue reading this article,
please subscribe and support local journalism!


Subscribing will allow you access to all of our premium content and archived articles.

Subscribe

To continue reading this article for FREE,
please kindly register and/or log in.


Registration is absolutely 100% FREE and will help us personalise your experience on our sites. You can also sign up to our carefully curated newsletter(s) to keep up to date with your latest local news!

Register / Login

Buy the e-paper of the Donegal Democrat, Donegal People's Press, Donegal Post and Inish Times here for instant access to Donegal's premier news titles.

Keep up with the latest news from Donegal with our daily newsletter featuring the most important stories of the day delivered to your inbox every evening at 5pm.